-
-
-
Tổng cộng:
-
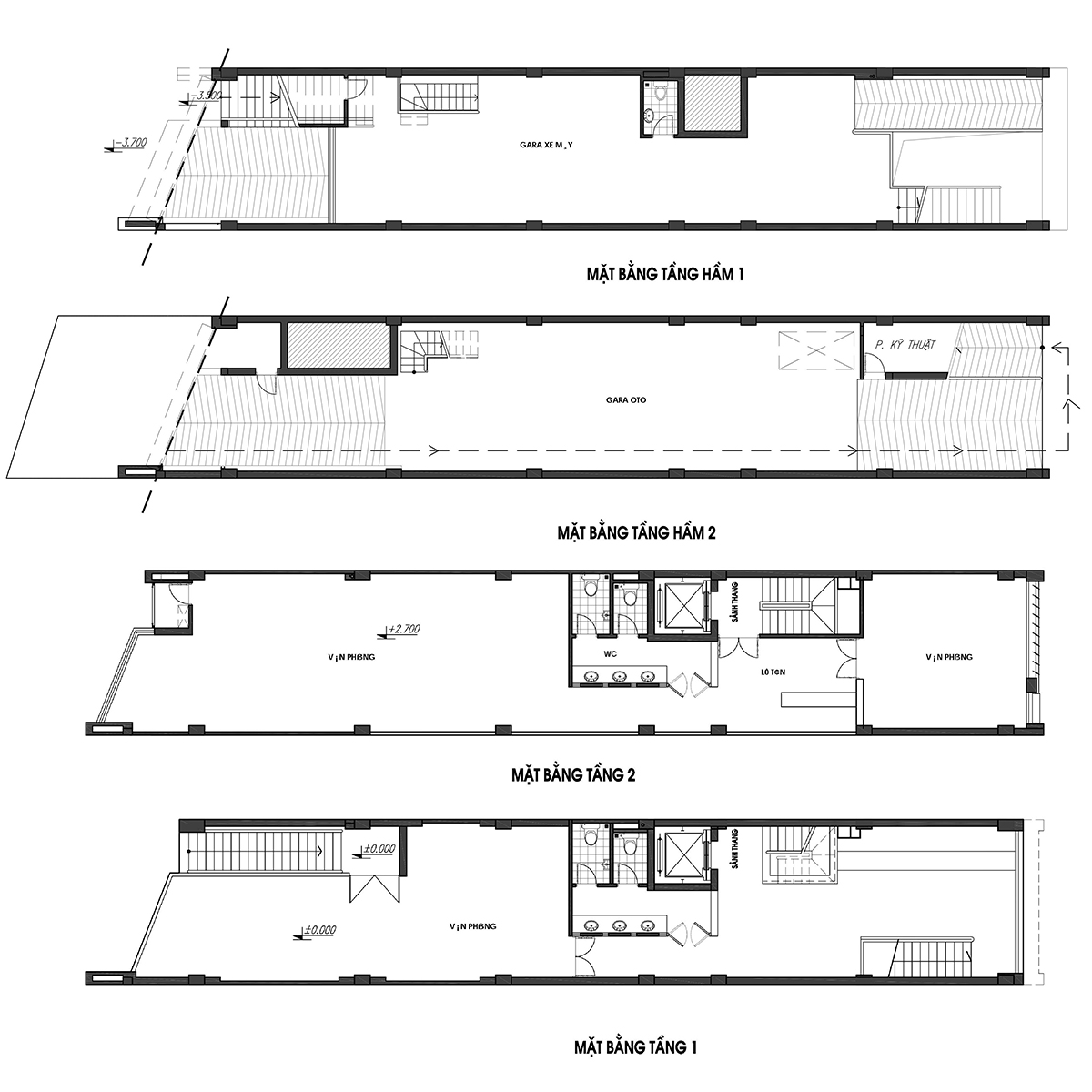
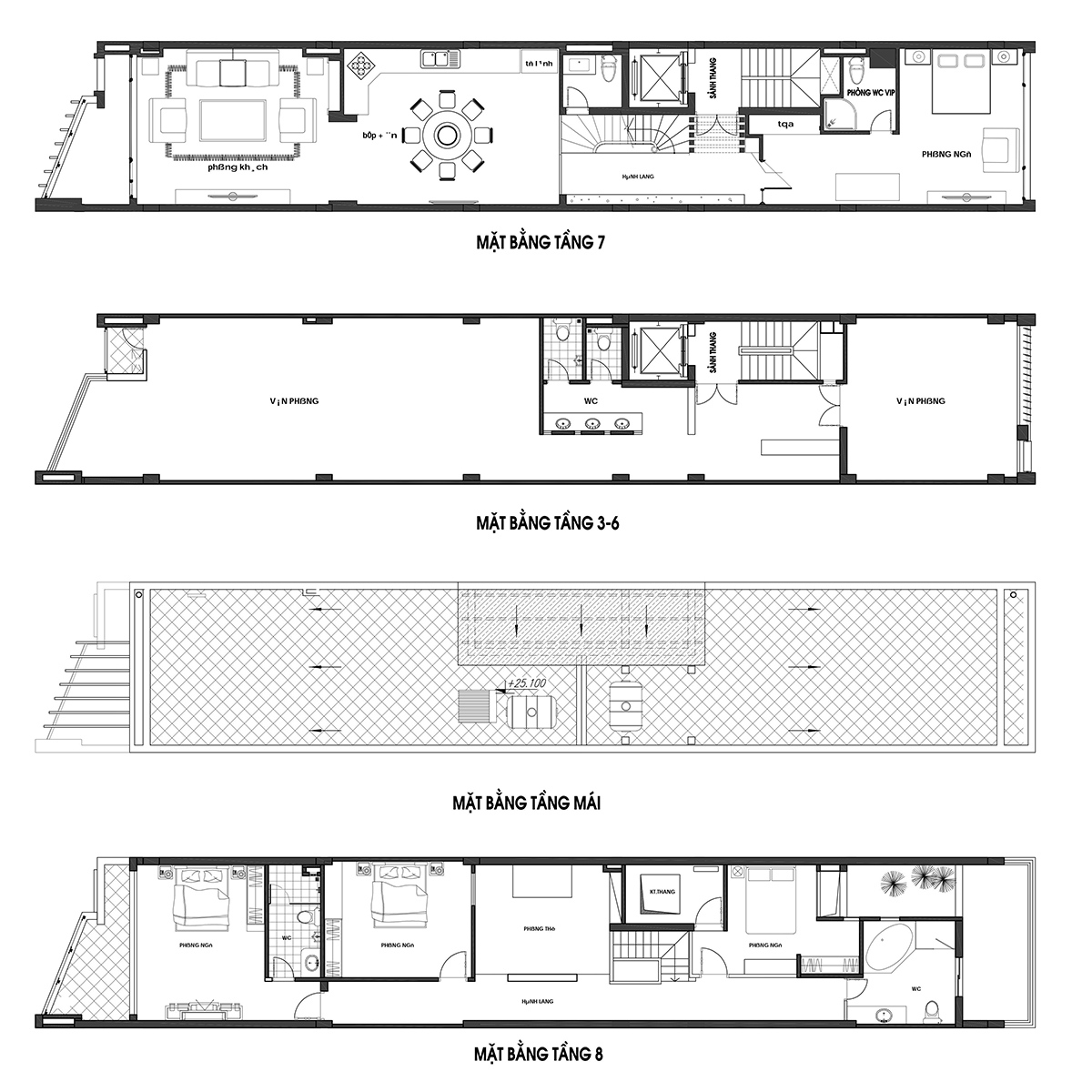
TÒA NHÀ HỒ TÙNG MẬU
TÒA NHÀ VĂN PHÒNG KẾT HỢP VỚI NHÀ Ở HỒ TÙNG MẬU
Từ một khu đất diện tích 150 m2,
Quy mô : 8 tầng
Địa chỉ : Hồ Tùng Mậu – Cầu giấy – Hà Nội
Đội ngũ kiến trúc sư giàu kinh nghiệm đã thiết kế lên công trình hiện đại và tối ưu công năng của gia chủ , tầng hầm 1 và 2 để xe oto và xe máy , tầng 1-6 khu văn phòng cho thuê , tầng 7,8 khu nhà ở . kết nối các tầng giao thông đứng bằng hệ thống thang máy và thang bộ , kết hợp các khoảng thông tầng để lấy gió tự nhiên .






